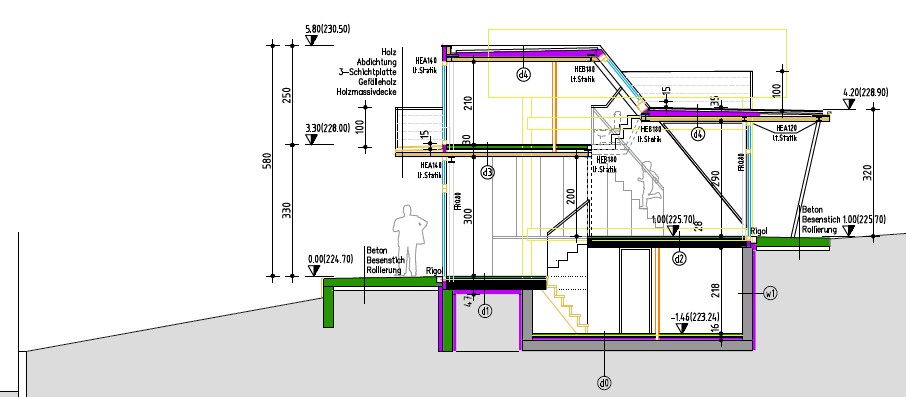
Haus Z
Kleingartenwohnhaus, Einreichung und Ausführungsplanung.Wien. 2021.
Der Entwurf stammt vom Atelier für Architektur, Nageler Kissler, Wien. Unsere Leistung bestand in der Erstellung der Einreichunterlagen samt EAW und einer Ausführungsplanung für die Baumeisterarbeiten.


