Expander Architekten
Ziviltechniker GmbH, Wien, Österreich - individuelle, kreative und kompetente Leistungen - Studien, Konzepte, Vorentwurf, Entwurf, Einreichplanung, Ausführungs- und Detailplanung, Bestandsplanung, Energieplanung begleitend zu allen Planungsstufen, Energieausweise (auch für Nicht-Wohngebäude), Kostenschätzung, Kostenverfolgung, Kostenfeststellung, Terminplanung, Ausschreibung, Vergabe, Abrechnung, Beratung in baurechtlichen Fragen, örtliche Bauaufsicht, Fertigstellungen, Nutzwertgutachten
Wettbewerbe
Häuser
Ladenbau
Möbel
Über Uns
Überlegungen
Leistungen
Kontakt
#128 (no title)
AT
NL
Search
Search
Archives
December 2024
April 2024
December 2023
January 2023
October 2020
June 2019
July 2018
June 2018
April 2018
June 2017
March 2017
January 2017
September 2016
December 2015
September 2015
August 2015
Meta
Log in
Proudly powered by WordPress
Haus K
By
expander
in
FrontPage
,
Häuser
on 2017-06-09
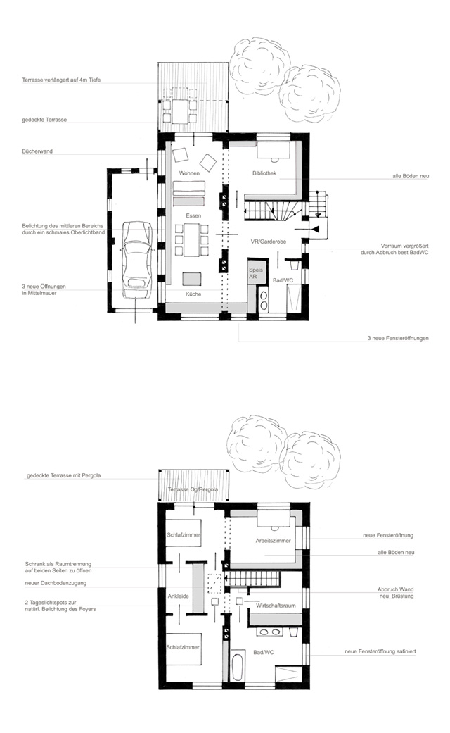
Wien, Zu- und Umbau, 2017
Der Windfang wird umgedreht und vergrößert.
Comments are closed.
Search
Archives
December 2024
April 2024
December 2023
January 2023
October 2020
June 2019
July 2018
June 2018
April 2018
June 2017
March 2017
January 2017
September 2016
December 2015
September 2015
August 2015
Meta
Log in